ARQUITECTURA
RESTAURANTE TÁNDEM
Reforma completa de local para restaurante.
Proyecto: Reforma de local para restaurante
Promotor: TÁNDEM
Situación: Calle Cánovas del castillo, Murcia
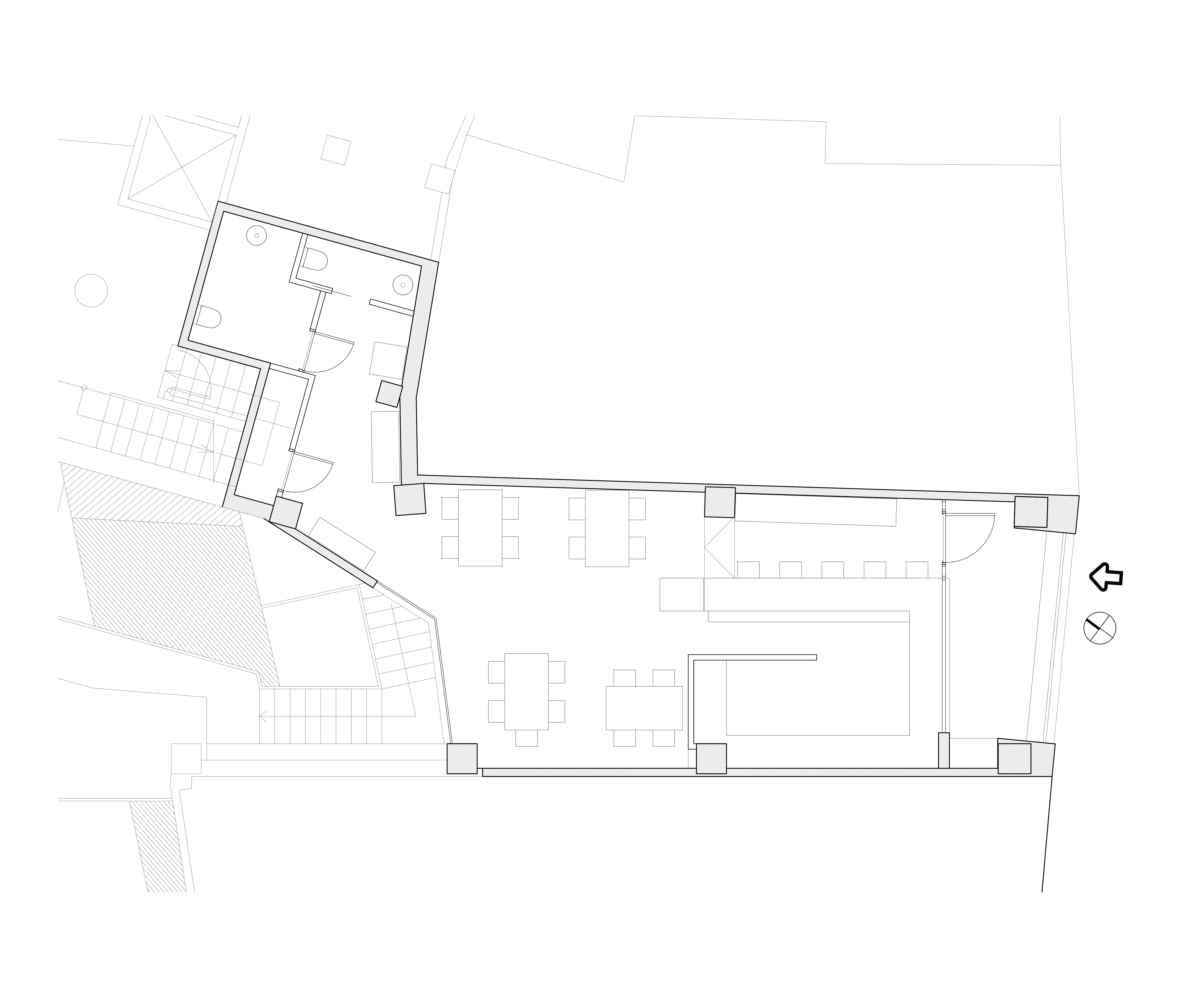
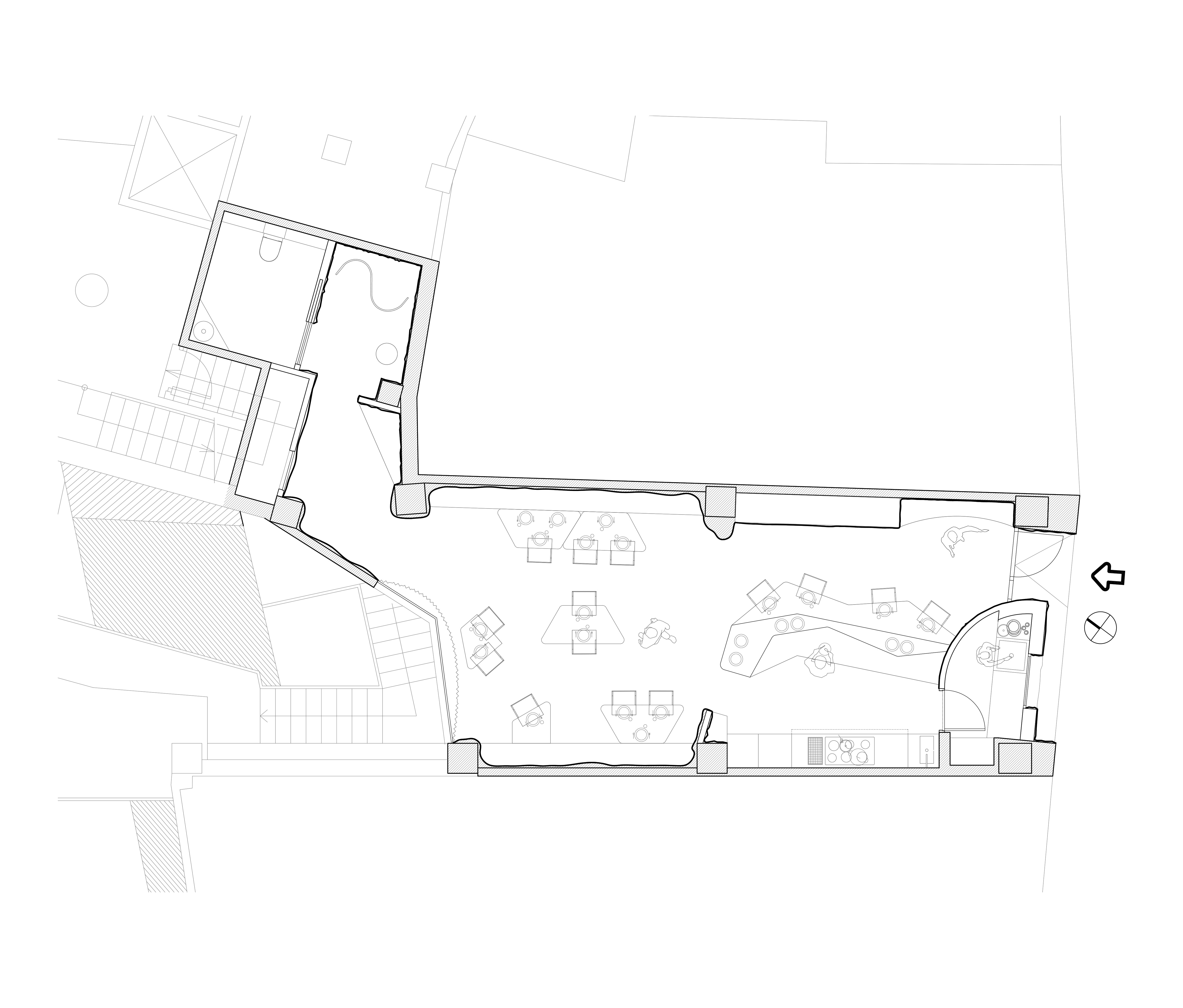
Sup. útil reformada: 70 m2
Estado: acabado 2025
Arquitecta colaboradora: María Escribano
Estudian interiorismo colaboradora: Carmen Ortín
Fotografía: David Frutos
FICHA TÉCNICA
Construye: GAELIA
Suelo: COSENTINO
Microcemento barra: CEMEX, DECORVERDÚ
Sillas: MESTA
Grifería: IMEX
Mecanismos: EFAPEL
RESTAURANTE TÁNDEM
Reforma completa de local para restaurante.
Proyecto: Reforma de local para restaurante
Promotor: TÁNDEM
Situación: Calle Cánovas del castillo, Murcia
Sup. útil reformada: 70 m2
Estado: acabado 2025
Arquitecta colaboradora: María Escribano
Estudian interiorismo colaboradora: Carmen Ortín
Fotografía: David Frutos
FICHA TÉCNICA
Construye: GAELIA
Suelo: COSENTINO
Microcemento barra: CEMEX, DECORVERDÚ
Sillas: MESTA
Grifería: IMEX
Mecanismos: EFAPEL
Reforma de local comercial para restaurante en Murcia.
Un briefing extraordinario.
Tándem es uno de los restaurantes con mayor proyección de la Región de Murcia. En poco tiempo ha logrado consolidarse como referente gastronómico, reconocido por su lema: “oficio, producto y honestidad”.
Bajo esta premisa, decidieron transformar su espacio para que transmitiera su verdadera esencia.
Lo que más nos conmovió desde el inicio fue su idea de hogar: que los clientes entrasen en un ambiente cercano, cálido y sencillo. En otras palabras, que el restaurante fuese la expresión pura de lo que son.
Interpretar sin impostar.
Tándem custodia un tesoro único: restos arqueológicos musealizados de un tramo de la muralla de la medina de Murcia, datada en el siglo XII.
Para nosotras, ese hallazgo fue el leitmotiv del proyecto: lograr que el nuevo local dialogara con el yacimiento.
Como un continuum temporal, el interior se integra con la atmósfera de los restos sin caer en imitaciones literales, evitando así el artificio. Apostamos por materiales contemporáneos trabajados en texturas, colores y luces que evocan el pasado de forma honesta.
El yeso proyectado en tono marrón suave remite a las murallas descarnadas de cal. La iluminación tenue y cálida recuerda a la de las musealizaciones, transportándonos a una medina nocturna iluminada por farolillos y lámparas de aceite. La madera oscura aporta un matiz exótico y, al trabajarse en tablas, evoca la construcción en tapial de murallas y torres. Las formas orgánicas y curvilíneas rememoran las calles y trazados intrincados de las antiguas medinas árabes.
IA: inteligencia arquitectónica.
El local, estrecho y alargado, nos planteaba un desafío: ¿cómo ampliarlo visualmente y cumplir todos los requisitos logísticos?
La respuesta: cabeza, corazón y diseño.
La cocina abierta recibe al comensal con una barra japonesa en forma serpenteante, que avanza y retrocede para invitar al diálogo entre clientes y cocinero. Aquí, el concepto de “ver sin ser visto” se materializa en una barra de tres alturas combinando madera, microcemento y acero.
En el salón, las mesas modulares se inspiran en dos conceptos:
- La filosofía Montessori, que defiende flexibilidad, conectividad y cooperación.
- El juego Tangram, cuyas piezas se unen para generar nuevas formas.
Gracias a este diseño, el salón puede redistribuirse infinitamente según las reservas, creando desde mesas individuales hasta composiciones para 20 comensales.
El yeso proyectado con pintura mineral reduce la reverberación y suaviza visualmente paredes y pilares, permitiendo una organización más fluida. La madera de sapeli, a menudo injustamente olvidada, aporta un tono oscuro con matiz rojizo que transmite elegancia y calidez. La iluminación oculta y regulable adapta la atmósfera al momento: más luz con más afluencia, menos luz en cenas íntimas.
Un lugar para quedarse.
El nuevo Tándem es un espacio inesperado, donde arquitectura, interiorismo y gastronomía se funden para prolongar el disfrute.
Un proyecto que combina diseño emocional, respeto por el patrimonio y funcionalidad contemporánea, convirtiendo cada visita en una experiencia sensorial completa.
PUBLICADA EN:
PUBLICADA EN:
PROYECTOS RELACIONADOS
LA MADRUGADA DE JAVIER MORENO
Reforma de local comercial en Beniaján, Murcia
TINEZZOVA
Reforma de local comercial para centro estético, Murcia.
OFICINAS LANOFRUITS
Reforma de local para oficinas, Espinardo, Murcia.
CONTACTO
Si tienes cualquier consulta, quieres pedir presupuesto ó simplemente contactar con la oficina, por favor llama al teléfono 616 10 58 32, escribenos un correo a hola@lauraortin.com ó rellena el siguiente formulario, también estamos en redes sociales, vive la experiencia!
Si tienes cualquier consulta, quieres pedir presupuesto ó simplemente contactar con la oficina, por favor llama al teléfono
616 10 58 32, escribenos un correo a hola@lauraortin.com ó rellena el siguiente formulario, también estamos en redes sociales, vive la experiencia!




